新築戸建 本日新着

町田市本町田 4号棟

価格
4,580万円
間取
3SLDK
築年月
2025/11(1年未満)
建物面積
104.18m²(31.51坪)
土地面積
133.25m²(40.3坪)
所在地
町田市本町田 4号棟
交通
小田急線玉川学園前駅まで 徒歩14分 小田急線小田急線町田駅まで 徒歩26分 横浜線JR町田駅まで バス9分
お電話でのお問い合わせ

物件コード:16729

お電話でお問い合わせの際は、物件コードをお伝えください。

042-708-8375

営業時間:9:30 AM - 6:30 PM

定休日:水曜日、第1・3・5日曜日 完全予約制

ポイント POINT

      

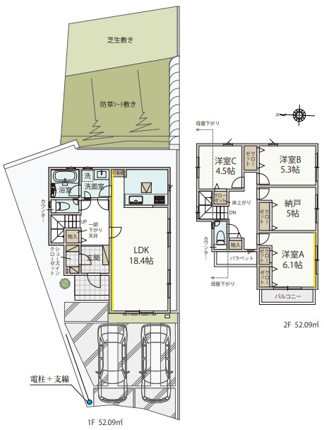
☆南西道路接道につき日当たり良好♪ ☆LDKは17帖超えのゆとりあるくつろぎの空間! ☆お友達も呼べる充実のカースペース2台分! ※内観写真は1号棟

◆町田第三小学校徒歩約17分 ◆町田第一中学校徒歩約20分 ◆ファミリーマート町田本町田店徒歩約3分 ◆本町田わかくさ保育園徒歩約5分 ◆サンドラッグ町田南大谷店徒歩約7分 ◆三徳本町田店徒歩約8分

*他のポータルサイトに掲載されている物件もほぼご紹介出来ますのでお問い合わせください*

物件詳細DETAIL

建物構造
木造
間取詳細
(1階)LDK18.4、(2階)洋6.1、(2階)洋5.3、(2階)洋4.5、(2階)納戸5.0
建ぺい率
40%
容積率
80%
地目
宅地
用途地域
第一種低層住居専用地域
取引態様
仲介
私道面積
-
引渡時期
2025/12 中旬
土地権利
所有権
借地料
-
借地期間
-
セットバック
建築確認番号
接道
南西 4m(幅員) 公道
諸費用
周辺環境
ストアー前 停歩3分
学区
町田第三小学校 町田第一中学校
特色/設備
日当り良好、駐車場2台分、浄水器、床下収納、浴室乾燥機、南道路、洗髪洗面化粧台、公営水道、公共本下水、複層ガラス、温水洗浄便座、システムキッチン、対面式キッチン、トイレ2ヶ所、モニタ付インターホン、都市ガス、食器洗浄乾燥機、太陽光発電
情報更新日
2025年11月18日
次回更新予定日
2025年11月20日
取引条件有効期限
2025年11月18日
※掲載されている物件データが現状と異なる場合は現状を優先します。

ローンシミュレーション LOAN SIMULATION

物件の価格
4,580万円
月々の返済額
ボーナス月
年間の返済額
返済総額
利息合計
万円
万円
%
※毎回の返済額が開始から終了まで均等となる「元利均等返済」で算出しています。 ※金利は期間中固定となる固定金利を採用しています。 ※月々の返済額は小数点以下を繰り上げしています。 ※シミュレーションでの結果は、あくまでも目安で、概算になります。実際にローン契約をする際は、詳細を金融機関にご確認ください。 ※実際のローン契約時には諸費用・税金(手数料や印紙税、保証料など)が別途かかりますので、契約の際にご確認ください。
会社写真

株式会社 かりん不動産COMPANY

所在地
東京都町田市金井三丁目23-2
免許番号
東京都知事免許(4)第91890号
会員
(公社)全日本不動産協会 (公社)不動産保証協会
電話番号
042-708-8375
FAX番号
042-708-8374
営業時間
9:30 AM - 6:30 PM
定休日
水曜日、第1・3・5日曜日 完全予約制