価格 |
4,180万円 |
||
|---|---|---|---|
間取 |
4SLDK |
築年月 |
1985/08(築40年) |
建物面積 |
128.98m²(39.01坪) |
土地面積 |
221.2m²(66.91坪) |
所在地 |
町田市三輪緑山1丁目 |
||
交通 |
小田急線鶴川駅まで バス10分 |
お電話でのお問い合わせ
物件コード:16728
お電話でお問い合わせの際は、物件コードをお伝えください。
042-708-8375
営業時間:9:30 AM - 6:30 PM
定休日:水曜日、第1・3・5日曜日 完全予約制
ポイント
POINT

☆リフォーム履歴あり!(2011年4月)【キッチン新規交換、LD漆喰壁貼替、床タイル貼、耐震改修工事、シロアリ予防工事】 ☆2階全居室南向きにつき日当たり良好♪ ☆LDKは24帖超えのゆとりあるくつろぎの空間♪
◆三輪小学校徒歩約13分 ◆鶴川第二中学校徒歩約36分 ◆町田三輪郵便局徒歩約2分 ◆三輪子どもクラブMIWA~GO徒歩約2分 ◆グルメシティ鶴川緑山店徒歩約4分 ◆鶴川記念病院徒歩約22分 ◆夢の森幼稚園徒歩約24分
*他のポータルサイトに掲載されている物件もほぼご紹介出来ますのでお問い合わせください*
物件詳細DETAIL
建物構造 |
木造 |
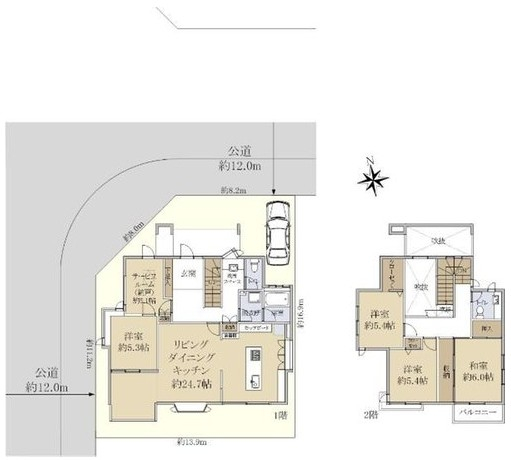
間取詳細 |
(1階)LDK24.7、(1階)洋5.3、(1階)S5.1、(2階)洋6.0、(2階)洋5.4、(2階)洋5.4 |
|---|---|---|---|
建ぺい率 |
50% |
容積率 |
80% |
地目 |
宅地 |
用途地域 |
第一種低層住居専用地域 |
取引態様 |
仲介 |
私道面積 |
- |
引渡時期 |
相談 |
土地権利 |
所有権 |
借地料 |
- |
借地期間 |
- |
セットバック |
建築確認番号 |
||
接道 |
北東 12m(幅員) 公道
北西 12m(幅員) 公道 |
諸費用 |
|
周辺環境 |
三輪中央公園前 停歩1分 |
学区 |
三輪小学校
鶴川第二中学校 |
特色/設備 |
日当り良好、駐車場、公営水道、洗髪洗面化粧台、システムキッチン、温水洗浄便座、公共本下水、トイレ2ヶ所、対面式キッチン、都市ガス、漆喰・珪藻土壁 |
||
情報更新日 |
2025年11月23日 |
次回更新予定日 |
2025年11月24日 |
取引条件有効期限 |
2025年11月23日 |
※掲載されている物件データが現状と異なる場合は現状を優先します。
ローンシミュレーション
LOAN SIMULATION
- 物件の価格
- 4,180万円
- 月々の返済額
- 円
- ボーナス月
- 円
- 年間の返済額
- 円
- 返済総額
- 円
- 利息合計
- 円
万円
万円
%
年
※毎回の返済額が開始から終了まで均等となる「元利均等返済」で算出しています。
※金利は期間中固定となる固定金利を採用しています。
※月々の返済額は小数点以下を繰り上げしています。
※シミュレーションでの結果は、あくまでも目安で、概算になります。実際にローン契約をする際は、詳細を金融機関にご確認ください。
※実際のローン契約時には諸費用・税金(手数料や印紙税、保証料など)が別途かかりますので、契約の際にご確認ください。
株式会社 かりん不動産COMPANY
所在地 |
東京都町田市金井三丁目23-2 |
||
|---|---|---|---|
免許番号 |
東京都知事免許(4)第91890号 |
||
会員 |
(公社)全日本不動産協会
(公社)不動産保証協会
|
||
電話番号 |
042-708-8375 |
FAX番号 |
042-708-8374 |
営業時間 |
9:30 AM - 6:30 PM |
定休日 |
水曜日、第1・3・5日曜日 完全予約制 |

