町田市本町田 1号棟

価格 4,680万円

1/16

物件番号「16729」をお伝えください。

電話でお問合せ LINEでお問合せ

物件情報

価格 4,680万円
住所1
町田市本町田 1号棟
交通 小田急線 玉川学園前駅まで 徒歩14分
小田急線 小田急線町田駅まで 徒歩26分
横浜線 JR町田駅まで バス9分
バス停名 ストアー前
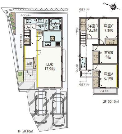
間取 4LDK
間取詳細 (1階)LDK17.9、(2階)洋6.1、(2階)洋5.3、(2階)洋5.0、(2階)洋3.2
土地面積 125.49m²
建物面積 100.2m²
接道(全て) 南西 4m(幅員) 公道
西暦築年月 2025/11
学区 町田第三小学校/町田第一中学校
建物構造 木造
建ぺい率1 40%
容積率1 80%
地目 宅地
用途地域1 第一種低層住居専用地域
土地権利 所有権
引渡時期 即時
特色 日当り良好、駐車場2台分、浄水器、床下収納、浴室乾燥機、角地、南道路、洗髪洗面化粧台、公営水道、公共本下水、複層ガラス、温水洗浄便座、システムキッチン、対面式キッチン、トイレ2ヶ所、モニタ付インターホン、都市ガス、食器洗浄乾燥機、太陽光発電
Webコメント       

☆南西道路接道につき日当たり良好♪ ☆LDKは17帖超えのゆとりあるくつろぎの空間! ☆お友達も呼べる充実のカースペース2台分!

◆町田第三小学校徒歩約17分 ◆町田第一中学校徒歩約20分 ◆ファミリーマート町田本町田店徒歩約3分 ◆本町田わかくさ保育園徒歩約5分 ◆サンドラッグ町田南大谷店徒歩約7分 ◆三徳本町田店徒歩約8分

*他のポータルサイトに掲載されている物件もほぼご紹介出来ますのでお問い合わせください*
※掲載されている物件データが現状と異なる場合は現状を優先します。

更新情報

情報更新日 2026年01月31日
次回更新予定日 2026年02月02日
取引条件有効期限 2026年01月31日

物件番号「16729」をお伝えください。

電話でお問合せ LINEでお問合せ
電話 メール LINE
簡易お問合せ

お名前


メールアドレス


問合せ内容


OK