川崎市麻生区片平4丁目

価格 4,699万円

1/25

物件番号「16624」をお伝えください。

電話でお問合せ LINEでお問合せ

物件情報

価格 4,699万円
住所1
川崎市麻生区片平4丁目
交通 小田急線 柿生駅まで 徒歩15分
小田急多摩線 五月台駅まで 徒歩18分
バス停名
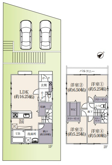
間取 4SLDK
間取詳細 (1階)LDK16.25、(1階)納戸3.0、(2階)洋6.5、(2階)洋5.25、(2階)洋5.25、(2階)洋5.0
土地面積 151.55m²
建物面積 97.7m²
接道(全て) 北西 6m(幅員) 公道
西暦築年月 2019/01
学区 柿生小学校/白鳥中学校
建物構造 木造
建ぺい率1 50%
容積率1 100%
地目 宅地
用途地域1 第一種低層住居専用地域
土地権利 所有権
引渡時期 即時
特色 日当り良好、駐車場2台分、眺望良好、床下収納、W.I.C、浴室乾燥機、洗髪洗面化粧台、公営水道、公共本下水、複層ガラス、温水洗浄便座、システムキッチン、対面式キッチン、トイレ2ヶ所、モニタ付インターホン、都市ガス
Webコメント     

☆室内リフォーム済(令和7年8月1日完了)【キッチン・ユニットバス・トイレ交換、全面クロス貼替、CF貼替、クリーニング etc... 】 ☆高台につき眺望・通風良好♪ ☆お友達も呼べる充実のカースペース2台分!(車種により3台駐車可能!)

◆柿生小学校徒歩約11分 ◆白鳥中学校徒歩約22分 ◆どんぐり保育園徒歩約9分 ◆マルエツ柿生店徒歩約17分 ◆ハックドラッグ柿生店徒歩約17分 ◆ファミリーマート柿生駅前店徒歩約18分

*他のポータルサイトに掲載されている物件もほぼご紹介出来ますのでお問い合わせください*
※掲載されている物件データが現状と異なる場合は現状を優先します。

更新情報

情報更新日 2025年11月03日
次回更新予定日 2025年11月04日
取引条件有効期限 2025年11月03日

物件番号「16624」をお伝えください。

電話でお問合せ LINEでお問合せ
電話 メール LINE
簡易お問合せ

お名前


メールアドレス


問合せ内容


OK