町田市忠生2丁目 2号棟

価格 3,680万円

1/3

物件番号「16613」をお伝えください。

電話でお問合せ LINEでお問合せ

物件情報

価格 3,680万円
住所1
町田市忠生2丁目 2号棟
交通 小田急線 小田急線町田駅まで バス16分
横浜線 JR町田駅まで バス16分
バス停名 山崎小学校
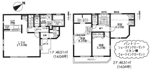
間取 3LDK
間取詳細 (1階)LDK17.63、(2階)洋8.25、(2階)洋6.23、(2階)洋5.25
土地面積 86.91m²
建物面積 93.02m²
接道(全て) 北東 6m(幅員) 公道
西暦築年月 2026/06
学区 山崎小学校/忠生中学校
建物構造 木造
建ぺい率1 60%
容積率1 200%
地目 宅地
用途地域1 第二種中高層住居専用地域
土地権利 所有権
引渡時期 2026/07 上旬
特色 日当り良好、駐車場、床下収納、W.I.C、浄水器、浴室乾燥機、洗髪洗面化粧台、公営水道、小屋裏収納、公共本下水、複層ガラス、温水洗浄便座、システムキッチン、対面式キッチン、トイレ2ヶ所、モニタ付インターホン、都市ガス
Webコメント     

☆全居室南東向きにつき日当たり良好♪ ☆全居室二面採光につき明るく風通しの良いお部屋! ☆前面道路は車の出し入れもしやすい6m道路!

◆山崎小学校徒歩約3分 ◆忠生中学校徒歩約17分 ◆ミニストップ町田忠生店徒歩約2分 ◆しぜんの国保育園徒歩約6分 ◆クリエイトS・D町田山崎店徒歩約7分 ◆三徳町田北店徒歩約17分 ◆コーナンビーバープロ町田木曽店徒歩約11分

*他のポータルサイトに掲載されている物件もほぼご紹介出来ますのでお問い合わせください*
※掲載されている物件データが現状と異なる場合は現状を優先します。

更新情報

情報更新日 2026年01月31日
次回更新予定日 2026年02月02日
取引条件有効期限 2026年01月31日

物件番号「16613」をお伝えください。

電話でお問合せ LINEでお問合せ
電話 メール LINE
簡易お問合せ

お名前


メールアドレス


問合せ内容


OK